
maître d'ouvrage : Commune de Saint-Hilaire-Saint Mesmin
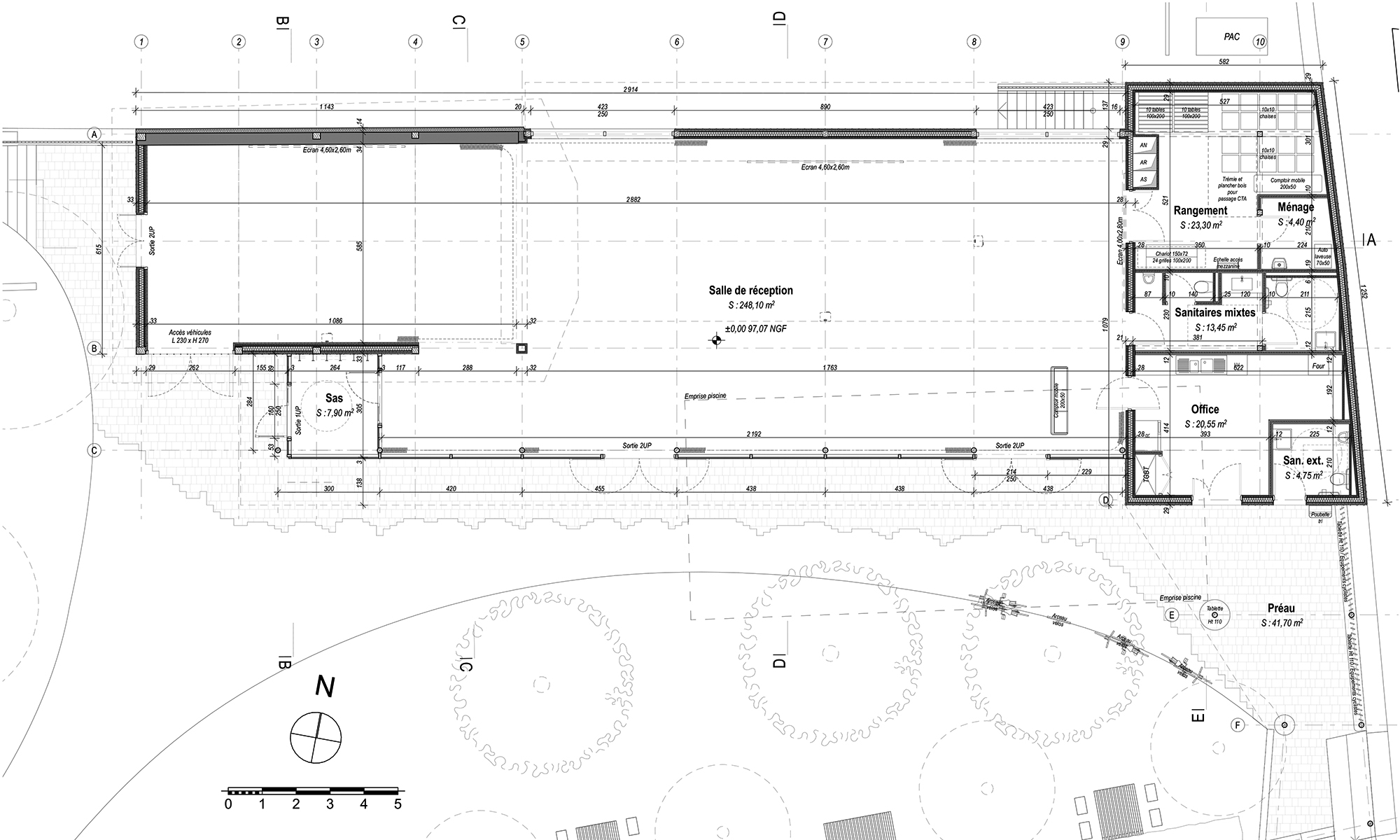
programme : Rénovation, extension et transformation d'un garage en bois en espace d'exposition, de réunion et de réception, à vocation associative et culturelle. Aménagement des abords : préau, halte cycliste et jardin d'agrément.
surface : 314 m² (SdP)
montant des travaux : 1 040 000 € HT
mission / calendrier : Mission complète Loi MOP / APD en cours
maîtrise d'oeuvre : Atelier Poinville (architectes mandataires), Tendre Vert (architectes paysagistes), Delage & Couliou (BET Thermique, CVC, Electricité), XYLO Structures (BET Structures Bois), Nicolas Privat (Economiste)
