
maître d'ouvrage : Privé
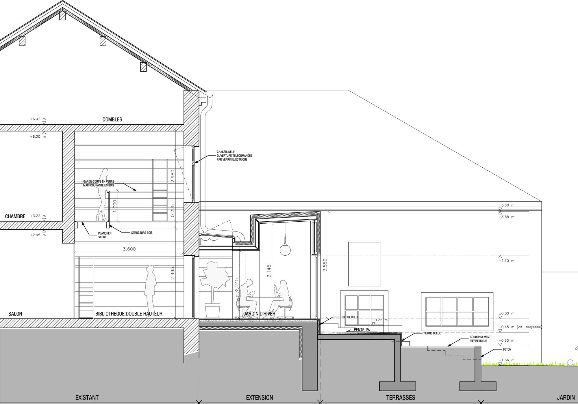
programme : Réaménagement et extension d’une maison individuelle à Luxembourg, comprenant création d’un jardin d’hiver, d'un sauna et de rangements en sous-sol, et d'une bibliothèque double hauteur dans le séjour existant. Ravalement, terrasses et aménagements extérieurs.
surface : 95 m² (surface créée)
montant des travaux : NC
mission / calendrier : Mission complète de maîtrise d'oeuvre / Livraison : septembre 2009
maîtrise d'oeuvre : ml² architecture, Martin & Malou Lavaux (architectes), ProjetLux (Ingénieur Structure BA)
