
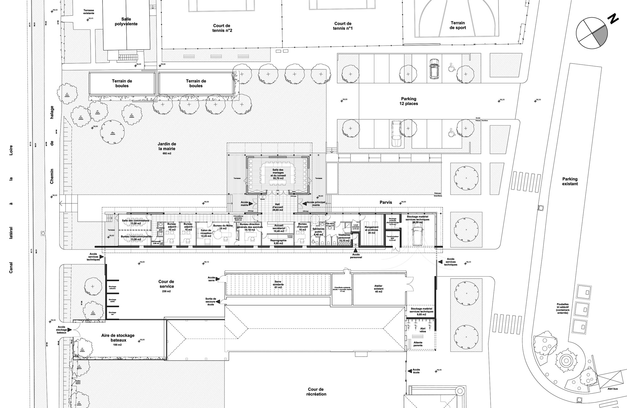
maître d'ouvrage : Commune de Combleux
programme : Construction d'une nouvelle mairie, d'une cour de service et de locaux pour les services techniques. Création d'un parking, aménagement des abords de la mairie et de l’ecole.
surface : 425 m² (SHOB) - 353 m² (SHON) - 3 400 m² (aménagements extérieurs)
montant des travaux : 670 000 € HT
mission / calendrier : Loi MOP + OPC / Etudes 2004-2008 - Opération arrêtée en phase Appel d'Offres (avril 2008)
maîtrise d'oeuvre : Atelier Poinville (architectes), Atelier Sans Réserves (architectes associés), Patrick Simonneau (économiste), Schmit Structures (BET structure), Axys (BET fluides / élec)
